Popis
Materiál: smrek
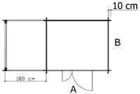
A: Výška hrebeňa strechy max.: 230 cm
B: Výška bočnej steny: 198 a 225 cm
C: Čelný presah strechy: 32 cm
D: Bočný presah strechy: 24 cm
E: Šírka prístrešku: 180 cm
Dvere: dvojkrídlové 120 x 175 cm, 2/3 sklo
Okno: bez okna
Hrúbka strešnej perodrážky: 19 mm
Hrúbka steny: 28 mm alebo 44 mm
Rozmery chatky sú vrátane presahu stien 10 cm