Smart House |
|
|
|
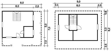
A/Petra
 Typ
| zastavaná plocha (m2)
| objem (m3)
| výška po hrebeň (m)
| svetlá výška prízemia (m)
| užitková plocha (m2) | plocha strechy
(m2)
| orientačná hmotnosť (kg)
| cena EUR, Sk s DPH a montážou
| PETRA
| 56,0
| 238
| 6,2
| 2,5
| 47
| 97,5
| 5900
| 29 963, 49 EUR 902 680,- Sk
|

|
|