Smart House |
|
|
|
A/Prílepok
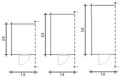
 Typ
| vonkajší rozmer (m)
| zastavaná plocha (m2)
| objem (m3)
| výška hrebeňa (m)
| plocha strechy
(m2)
| orientačná hmotnosť (kg)
| rozmery balíka (m)
| cena Sk s DPH a montážou
| 2,0
| 1,5 x 1,9
| 2,76
| 4,49
| 1,82
| 3,92
| 255
| 2,20 x 1,15 x 0,40
| 534, 95 EUR 16 116,- Sk
| 2,5
| 1,5 x 2,4
| 3,50
| 5,69
| 1,82
| 4,84
| 270
| 2,70 x 1,15 x 0,40
| 605,02 EUR 18 227,- Sk
| 3,0
| 1,5 x 2,9
| 4,23
| 6,87
| 1,82
| 5,75
| 285
| 3,20 x 1,15 x 0,40
| 673, 84 EUR 20 300,- Sk
|

|
|