Smart House |
|
|
|
B/ANDREJ
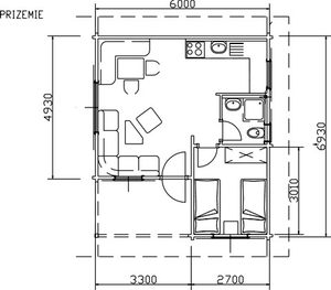
B/Rekreačná chata ANDREJ
Vonkajšie steny - 68 mm masívny stenový hranol zabezpečený proti deformácii drevenými kolíkmi a závitovými tyčami.  Cena chaty: EUR, Sk s DPH: 17 380, 33 EUR / 523 600,- Sk Cena izolácií a vnút. obkladov s DPH: 5 443, 13 EUR / 163 980,- Sk Cena Euro okien a dverí s DPH: 4 779, 59 EUR / 143 990,- Sk
*Cena bez dopravy, náterov, strešnej krytiny, izolácie, montáže a inštaláciíTechnické informácie
|
|