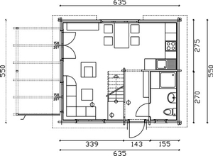
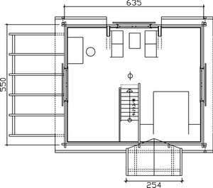
B/Rekreačná chata BELA (s podkrovím)
Vonkajšie steny - 68 mm masívny stenový hranol zabezpečený proti deformácií drevenými kolíkmi a závitovými tyčami



- Cena chaty hrúbka steny 68 mm: 24 197, 37 EUR , 728 970,- Sk s DPH
- Cena izolácií a vnútorných obkladov: 6 246, 43 EUR , 188 180,- Sk s DPH
- Cena Euro okien a dverí:: 5 648, 61 EUR , 170 170,- Sk s DPH
Cena
chaty obsahuje vonkajšie steny v hrúbke dreva 68 mm, drevené okná s
okenicami a vchodové dvere-jednoduché, vnútorné kazetové dvere,
jednoduché smrekové schody, strešnú krytinu-pieskovú lepenku.
Cena neobsahuje nátery, inštalácie, dopravu.
Technické informácie