Bory-Zilina
    

Smart House





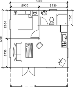
B/PETRA

B/Rekreačná chata PETRA


Vonkajšie steny - 64 mm alebo 44 mm



tech51.jpg

  • Cena chaty hrúbka dreva 44 mm:        8 898, 63 EUR  ,  268 080,- Sk s DPH
  • Cena chaty hrúbka dreva 64 mm:      10 428, 20 EUR  ,  314 160,- Sk s DPH
  • Cena montáže:                                     1 573, 39 EUR  ,    47 400,- Sk s DPH
  • Cena asfaltového šindľa s montáou:   1 636, 19 EUR  ,    49 292,- Sk s DPH
V cene je započítaná piesková lepenka ako strešná krytina, ktorú je však po 2 - 3 rokoch potrebné vymeniť.
Cena neobsahuje betónovú platňu, inštalácie, asfaltový šindeľ, dopravu a izolácie.

Technické informácie