Smart House |
|
|
|
B/TIMEA T
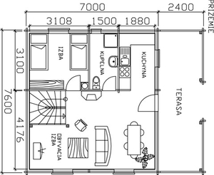
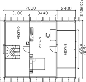
B/Rekreačná chata TIMEA T (s podkrovím)
Vonkajšie steny - 68 mm masívny stenový hranol zabezpečený proti deformácií drevenými kolíkmi a závitovými tyčami  Cena chaty EUR, Sk s DPH: 30 430, 12 EUR / 916 738,- Sk Cena izolácií a vnút. obkladov s DPH: 8 413, 33 EUR / 253 460,- Sk Cena Euro okien a dverí s DPH: 3 450, 83 EUR / 103 960,- Sk
*Cena bez dopravy, náterov, strešnej krytiny, izolácie, montáže a inštaláciíTechnické informácie
|
|