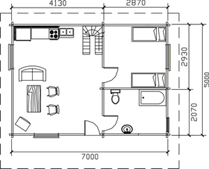
B/Rekreačná chata TIMEA C (s podkrovím)
Vonkajšie steny - 68 mm masívny stenový hranol zabezpečený proti deformácií drevenými kolíkmi a závitovými tyčami



- Cena chaty hrúbka steny 68 mm: 20 180, 90 EUR , 607 970,- Sk s DPH
- Cena izolácií a vnútorných obkladov: 6 985 EUR , 210 430,- Sk s DPH
- Cena Euro okien a dverí:: 4 593, 04 EUR , 138 370,- Sk s DPH
Cena chaty obsahuje vonkajšie steny v hrúbke dreva 68 mm, drevené okná s okenicami a vchodové dvere-jednoduché, vnútorné kazeové dvere, jednoduché smrekové schody, strešnú krytinu-pieskovú lepenku.
Cena neobsahuje nátery, inštalácie, dopravu.
Technické informácie