Smart House |
|
|
|
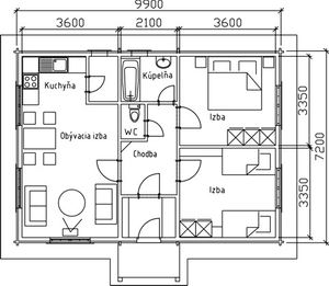
B/TEODOR
B/Rekreačná chata TEODOR (s podkrovím)
Vonkajšie steny - 68 mm masívny stenový hranol zabezpečený proti deformácií drevenými kolíkmi a závitovými tyčami    Cena chaty EUR, Sk s DPH: 31 779, 86 EUR / 957 400,- Sk Cena izolácií a vnút. obkladov s DPH: 5 336, 59 EUR / 160 770,- Sk Cena Euro okien a dverí s DPH: 5 881, 96 EUR / 177 200,- Sk
*Cena bez dopravy, náterov, strešnej krytiny, izolácie, montáže a inštalácií Technické informácie
|
|