Bory-Zilina
    

Smart House





EMA

EMA




POPIS

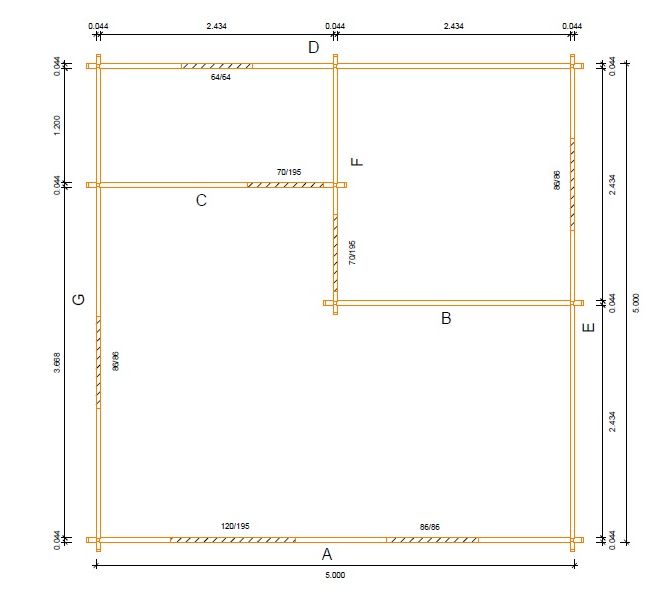
Rozmer: 
Úžitková plocha: 
 
PÔDORYS