Bory-Zilina
    

Smart House





Chata Benjamin-Relax
     Víkendová chata Benjamin - Víkend

 

       POPIS

•   Hrúbka steny: 44 mm
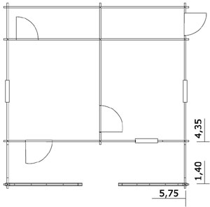
•   Rozmer: 575 x 375 cm


•    A: Výška hrebeňa strechy max.: 295 cm                                                                                                                                        
•    B: Výška bočnej steny: 234 cm
•    C: Čelný presah strechy: 30 cm
•    D: Bočný presah strechy: 30 cm
•    Dvere: dvojkrídlové 120 x 184 cm, 2/3 sklo =1 ks, vnútorné      plné 70 x 184 cm
•    Okno: pravé 60 x 75 cm s okenicou = 4 ks
•     Hrúbka strešnej perodrážky: 19 mm   



POPIS bodov                                                                                     Pôdorys
podorys_Vikedn_1.jpg  

 
Voliteľné doplnky - možnosť doobjednať


•    Tepelná izolácia strechy 12 cm + debnenie
•    Tepelná izolácia obvodových stien 5 cm
     + drevený odklad
•    Tepelná izolácia podlahy 5 cm
•    Drevená podlaha hrúbky 28 mm
•    Strešná krytina (fínsky bitumenový šindeľ-Katepal)

Víkendové chatky sa vyrábajú v hrúbke zrubu 44 mm. Na požiadanie zákazníka aj v hrúbke 64 mm.