Bory-Zilina
    

Smart House





LEO - Relax
Víkendová chata LEO - Relax



POPIS

Materiál: smrek

Hrúbka steny: 44 mm
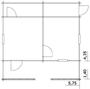
Rozmer: 575 x 575 cm


•    A: Výška hrebeňa strechy max.: 295 cm
•    B: Výška bočnej steny: 227 cm
•    C: Čelný presah strechy: 30 cm
•    D: Bočný presah strechy: 30 cm
•    E: Šírka terasy: 150 cm
•    F: Šírka skladu: 100 cm
•    Dvere: jednokrídlové 75 x 184 cm, plné - 2 ks
•    Dvere: jednokrídlové plné 60 x 184 cm, plné - 2 ks
•    Okno: pravé 60 x 75 cm s okenicou - 3 ks
•    Hrúbka strešnej perodrážky: 19 mm   

 Relax___podorys.jpg  
 
Voliteľné doplnky - možnosť doobjednať:
•    Tepelná izolácia strechy 12 cm + debnenie
•    Tepelná izolácia obvodových stien 5 cm + drevený obklad
•    Tepelná izolácia podlahy 5 cm
•    Drevená podlaha hrúbky 28 mm
•    Strešná krytina (fínsky bitumenový šindeľ-Katepal)

Víkendové chatky sa vyrábajú v hrúbke zrubu 44 mm a na požiadanie zákazníka aj v hrúbke 64 mm.