Bory-Zilina
    

Smart House





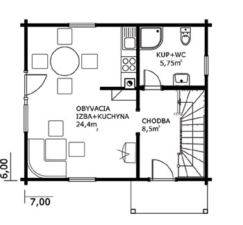
BODÍKY BEZ TERASY
Rekreačná chata – BODÍKY




Popis

Rozmer6,0 x 7,0 m
Úžitková plocha: 76 m2

Pôdorys