Bory-Zilina
    

Smart House





Bodíky s TERASOU
Rekreačná chata - BODÍKY s terasou



Popis

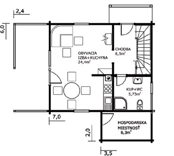
Rozmer: 6,0 x 7,0 m
Úžitková plocha: 76 m2

Pôdorys