Bory-Zilina
    

Smart House





HUGO
Rodinný dom HUGO

ROZMER
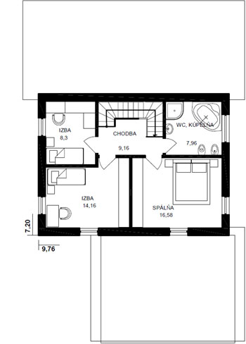
9,76 x 15,66 m

ÚŽITKOVÁ PLOCHA
165m2






POHĽADY



Pôdorys