Bory-Zilina
    

Smart House





ONDREJ
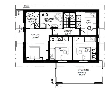
Rodinný dom ONDREJ

ROZMER
9 x 13 m

ÚŽITKOVÁ PLOCHA
198,2 m2






POHĽADY



Pôdorys