Bory-Zilina
    

Smart House





SIMON
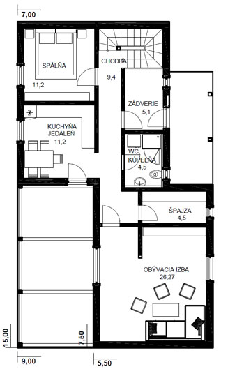
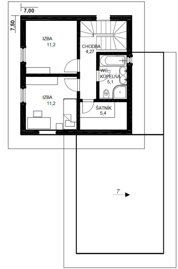
Rodinný dom SIMON

ROZMER
9 x 15 m

ÚŽITKOVÁ PLOCHA
109,3 m2





POHĽADY



Pôdorys