Bory-Zilina
    

Smart House





ŤÁŇA
Rodinný dom TÁŇA

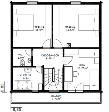
ROZMER
8,85 x 8, 85 m2

ÚŽITKOVÁ PLOCHA
146m2




POHĽADY



Pôdorys