Bory-Zilina
    

Smart House





TEO
Rodinný dom TEO

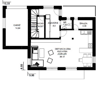
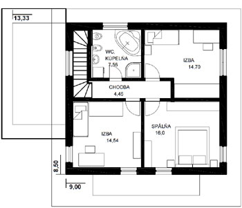
ROZMER
8,5 x 12,33 m2

ÚŽITKOVÁ PLOCHA
125,2 m2






POHĽADY




Pôdorys