Bory-Zilina
    

Smart House





ELEGANT
 Rodinný dom ELEGANT

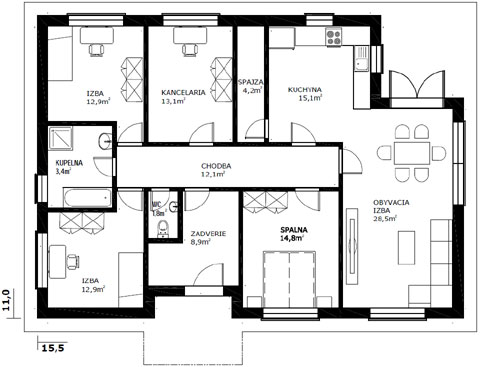
ROZMER
11 x 15,5 m

ÚŽITKOVÁ PLOCHA
128 m2






POHĽADY



Pôdorys