Bory-Zilina
    

Smart House





LUCIA
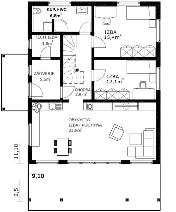
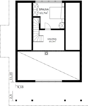
Rodinný dom LUCIA

ROZMER
9,1 x 11,1 m

ÚŽITKOVÁ PLOCHA
109,7 m2







POHĽADY




Pôdorys